Derngate Lofts, Northampton

August, 2017by Dave Hodgson
  • Final Budget
    Circa £4,000,000
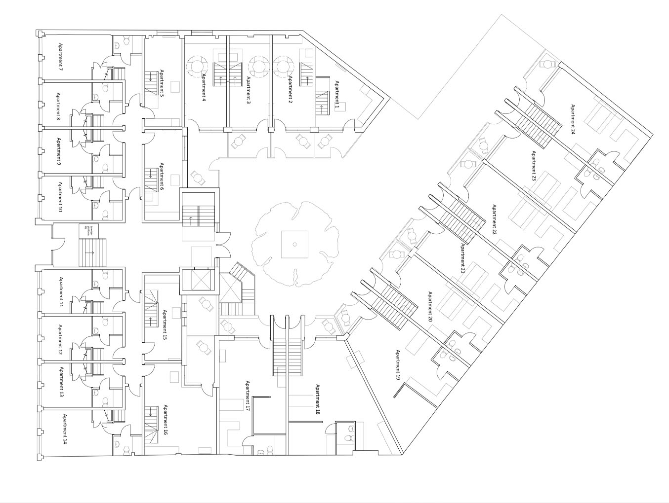
  • PROJECT
    57 apartments
  • CONTRACT TYPE
    Design and Build
  • ARCHITECT
    APC Architects
    www.consultapc.co.uk
  • LOCATION
    Northampton

A very exciting development in the heart of Northampton’s Cultural Quarter. It will add to the vibrancy that is being brought to the town centre by the many Northampton Alive projects and will transform a redundant former Herald and Post building into top quality apartments.

  • Energy Assessments & Statements
  • Pipework services
  • Power systems
  • Fire Suppression
  • Building Management Systems
  • Natural & mechanical ventilation
  • Smoke ventilation
  • Car park ventilation
  • Above ground and rain water drainage